Sold

144 Darby Rd, Echunga

SOLD for $1,560,000

4 2 10 9.50 ac

Something for everyone!

Welcome to Darby Road, a location that's tightly held for many reasons - being the dress circle for horse owners and those who appreciate country atmosphere with the convenience of being just 4 minutes to the Main Street of Hahndorf. 

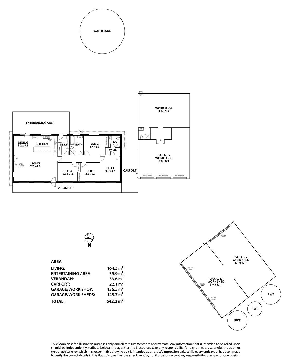
At this property, your expectations of shedding will undoubtedly be exceeded - there's 280sqms of insulated, totally secure space - space to create your home business, teen retreat / granny flat, with room left over for hobby projects or further pursuits. Now is the time to realise those dreams when you have the ready-made space to accommodate them!

And what a top spot to set yourself up for the long term. Every day will be a delight to arrive home, where the house sits high upon the rise of the long agapanthus and tree lined driveway and the sound of birds and horses are your only interruptions.  Here, it's absolutely private with not another house to be seen. 

Built in 1997 this high-quality conventional brick home offers 4 spacious bedrooms, all with built-ins, the master with a walk-in robe and ensuite and the main bathroom with bath is certainly big enough to handle what the kids throw at it. 

The tiled floors were recently laid, as was a custom kitchen built, which offers exceptional storage, functional drawers and clever design features. The 5-burner gas cooktop with electric oven, ASKO dishwasher and solid stone tops complete the statement kitchen. 

The prettiest of outlooks from every window, the open plan living space brings views of the outdoors in. A Lopi combustion heater adds warmth and charm and when required and there's 3 R/C split systems in the home for instant cooling or heating.

The 9.5acre property cradles a gum studded valley with a dam, fitted with a pump to pull water to irrigate the home garden. There are currently 2 sheep that call the large paddock home, welcoming new ownership should you wish and there is a huge supply of redgum ready to be harvested into saleable pieces should this be of interest.

Continuing to talk sheds, they both have new electrical sub boards to them. The one with 4 roller doors has been set up primarily for operating large machinery and has more power points than ever required.

The triple door shed next to the home can accommodate 3 cars at the front and has had an office and wall through the middle.  Into the rear part, a provision has been made for a bathroom and toilet, where the in-slab plumbing is established, the bathroom is lined, yet to be finished, which, when done, can service the huge remaining space that could very easily become bedrooms 5, 6 or 7.

There's 170,000litres of rainwater storage and plenty of scope to catch more if you wish in this high rainfall area. There's NBN available and in the event of a power outage, a power metre has been set up for the home to run off a generator. 

This property presents a wonderful opportunity to acquire substantial land, enormous shed space and a beautiful home in this very accessible, serene location.

Inspection a must to fully appreciate!  

4 2 10 9.50 ac

Details

Address 144 Darby Rd, Echunga
Price SOLD for $1,560,000
Property Type Residential
Property ID 86
Category Acreage Semi-rural
Land Area 9.50 ac

Tools

Share This Property